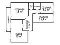
3-комнатная квартира · 80 м² · 6/6 этаж, Строительная 10А

24 000 000 
Город
Костанай, Костанайская обл. показать на карте
Тип дома
панельный
Год постройки
1990
Этаж
6 из 6
Площадь
80 м², Площадь кухни — 20 м²
Состояние квартиры
не новый, но аккуратный ремонт
Санузел
раздельный

Объявление может быть неактуальным.

Смотрите похожие объявления в разделе: Продажа квартир в Костанае

Объявление на карте
О квартире
Балкон
лоджия
Балкон остеклён
да
Высота потолков
2.5 м
Бывшее общежитие
нет
Возможен обмен
Нет
Описание
продам 3х комнатную квартиру материал стен панель 1990 года постройки 6 этаж +(технический этаж) распашонка (окна на обе стороны) без долгов и обременении рассмотрим ипотеку